新築住宅宮代町宮代台2F
価格3,290万円
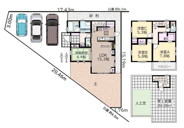
☆☆☆!屋上庭園付き新築戸建て☆☆☆
ゆとりの敷地52坪!両面道路で車の出し入れも楽々♪(最大3台駐車可能)
前面道路が広いので日当たりもよく、パントリーをはじめ、大型ウォークインクローゼットなど収納自慢の最新物件です。
***あったらいいな!を標準装備***
■LIXILシステムバス《浴室換気乾燥暖房機付き》
■LIXILシステムキッチン《食器洗浄乾燥機・オールインワン浄水シャワー栓・コンセント付》
■LIXIL3面鏡収納付きシャワードレッサー
■LIXIL洗浄機能付きシャワートイレ(1F,2F共通)
■YKKAP 断熱玄関ドア 電池式ポケットキー(リモコン×2、タグキー×3)
■全窓Low-E複層高性能ガラス(網戸付き)
■「不在時の安心を」宅配ボックス付きポスト
■カラーモニター付きインターホン(子機付き)
■階段手摺■24H換気システム■外水道■駐車スペース3台(車種に限りあり)

外観イメージパース
| 物件番号 | 宮代町宮代台2F | ||
|---|---|---|---|
| 物件名称 | 宮代町宮代台2F | ||
| 交通 | 東武伊勢崎「和戸」駅 徒歩16分 | ||
| 所在地 | 埼玉県南埼玉郡宮代町宮代台2丁目 | ||
| 価格 | 3,290万円 (税込) | 土地面積 | 174.17m2(52.68坪) |
| 建物面積 | 100.19m2(30.24坪) | 間取 | 4LDK |
| 販売戸数 | 1 | 構造・規模 | 木造(2階建) |
| 築年月 | -- | 建築確認番号 | 第SJK-KX255640250号 |
| 用途地域 | 第一種低層住居専用地域 |
地目 | 宅地 |
| 現況 | 建築中 | 建ぺい率 | 60% |
| 容積率 | 80% | 土地権利 | 所有権 |
| 都市計画 | 市街化区域 | 引渡日 | 令和8年5月末予定 |
| 接道状況 | 北側約6.5m公道に約17.4m接す・南西側約4.5m公道に約20.4m接す | 駐車場 | 3台(車種に限りあり) |
| 小学校区 | 宮代町立須賀小学校 約1,350m(徒歩17分) | ||
| 中学校区 | 宮代町立須賀中学校 約1,400m(徒歩17分) | ||
| 設備 | 公営水道・電気・集中プロパン・公共下水 | ||
| 備考 | 司法書士は弊社指定となります 住宅瑕疵担保保険JIO「わが家の保険」加入 住宅省エネルギー性能証明書取得 フラット35利用可能(申請費用買主負担) 地盤第三者保証 住宅無料点検(2・5・10年) |
||
| 取引態様 | 売主 | 情報公開日 | 2026/02/04 |

0480-32-1161




